近日,新松機器人為寶馬汽車有限公司提供的砂芯智能存儲及除濕系統竣工試運行。該系統按照德國“工業4.0”標準設計、制造,為沈陽智能制造提供了新的樣板工程。

“砂芯”用于發動機缸體的制造,是決定發動機鑄造質量的核心材料,東北雨季濕度80%以上,砂芯潮濕是制造質量的致命威脅。發動機鑄造砂芯對溫濕度要求極其苛刻,寶馬車間的原有通風系統為德國設計院設計的采用熱水盤管加熱制冷再加熱的原理,只能降低相對部分濕氣,不能達到砂芯模具對空氣的要求,每年制造損失經濟效益幾千萬元。

砂芯區域布局圖
寶馬規劃團隊找到新松,希望借助新松智能制造經驗幫助解決砂芯存儲區域的溫濕度問題。此時距離7月份的雨季時間只剩下三個月的時間,工期非常緊張。技術團隊經過現場考察發現現場車間情況也是十分復雜,使項目達成和濕度控制都十分艱難。溫濕度效果控制較好的空間需要的是相對封閉,但是寶馬車間分為60U區域和90U區域,面積2900㎡,層高6米,大型運輸孔4個,機器人運輸砂架到用戶及充電等動作導致10㎡兩道開關門經常開啟。還存在原有設計的通風系統存在大量實時濕負荷(40000m3/h兩臺機組),砂芯本身存在散濕,現場配電沒有足夠的預留電源容量,根據寶馬及消防標準通風系統需要引到20幾米屋頂,系統需要的冷凍水(14℃~20℃)沒有預留水量等多項難點。
面對如此復雜的系統新松人沒有退縮,發揮出了新松人越有困難越要解決困難、超越期待的特質。針對系統提出每一個需要處理的問題,通過對沈陽天氣及濕氣量分析,砂芯存儲車間實際工況及構造,研發出更合理的技術方案,通過了德國TUV認證考核,通過現場工程師不懈努力協調克服多項安裝難關,及時在雨季到來前達到了砂芯存儲區域的溫濕度要求。該方案結合德國工業標準,采用行業領先的壓縮機制冷、電加熱轉輪加熱達到除濕高效且節能的自動化系統,整個系統使用觸摸屏界面,并實現智能控制。

第一段新風制冷,通過高低壓報警、連鎖邏輯及預冷溫度控制壓縮機開啟條件PID閉環調節。第二段PID閉環根據溫度、濕度參數控制電加熱轉輪進行除濕,轉換熱量和濕氣。第三段通過再加熱系統。最終送風系統將新風降溫到系統要求的30度后進入工廠內部。系統通過PID閉環智能調節新風量及溫度。同時根據系統經驗,規劃出節能系統,采用其他車間熱回收熱水對系統壓縮機進行冷卻,并采用三臺機組聯合控制,有用有備,為寶馬發動機車間節省大量能源。

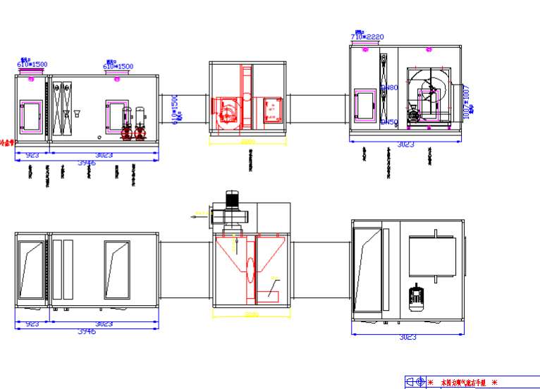
轉輪電加熱除濕系統構造圖
此外,廠區物流全部采用新松公司的 AGV 系統,該系統采用激光導航技術,并通過 WCS 系統智能控制,完成整個廠區砂芯的智能供應。系統能夠預測即將使用的沙架并提前行駛到指定點位,以減少供應時間
? ? ? ? ? ? ? ? ? ? ? ? ? ??

智能制造系統建成后,為寶馬公司帶來了多項商業價值:
?? 智能控制工廠內溫濕度,砂芯在良好的存儲空間內保存,每年為寶馬公司減少千萬級的設備損失。
?? 存儲過程無人化,物流車間全部智能管理,運輸錯位率降為零,可將人員應用到更多的增值過程。
?? 砂芯智能供應,在倉儲管理系統中自動追蹤沙架狀態,每項工作可降低150S時間,并增加可追溯性。無紙化信息流,減少打印費用。
?? 除濕系統自動控制,AGV自動行駛及充電,全部實現無人管理(TPU=0)。
?? 能源節省熱回收處理。
首頁



